| 关于天津环渤新材料有限公司高纯化学品(电子级化学品)生产项目-车间一建筑设计方案总平面图(调整)的公示 |
依据《中华人民共和国城乡规划法》和住房和城乡建设部《关于城乡规划公开公示的规定》的有关要求,现将天津环渤新材料有限公司高纯化学品(电子级化学品)生产项目-车间一建筑设计方案总平面图进行公示。
公示时间为2025年11月3日至2025年11月11日,为期七个工作日。
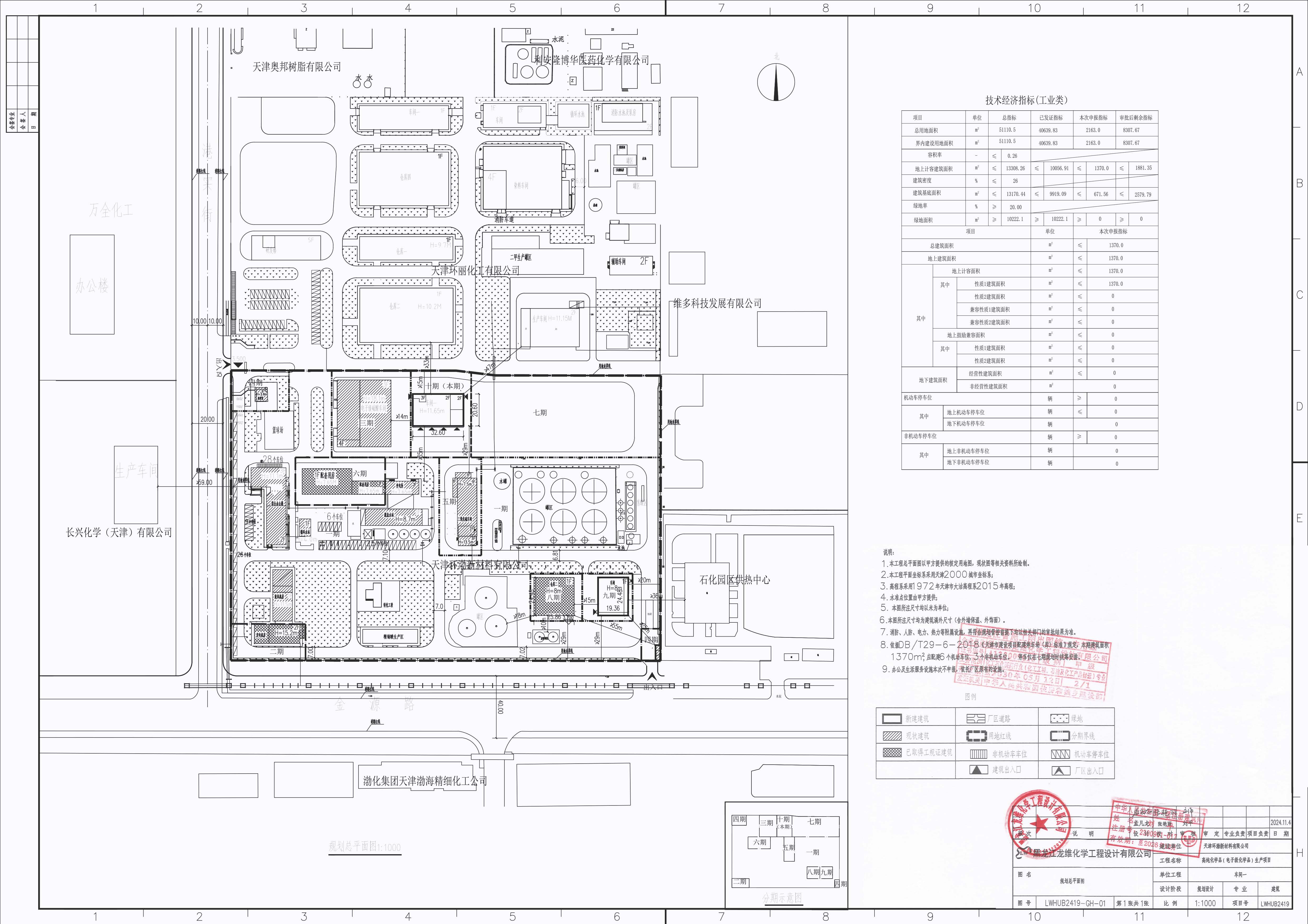
项目名称:天津环渤新材料有限公司高纯化学品(电子级化学品)生产项目-车间一
项目位置:天津市滨海新区大港石化产业园区港实街67号
建设单位:天津环渤新材料有限公司
设计单位:黑龙江龙维化学工程设计有限公司
项目简介(变更说明):由于实际生产需要和施工图深化设计的原因,现对原审定规划方案总平面图进行如下调整:
1.楼顶东侧局部形式改变,由原设计的普通顶变更为局部防爆顶。
2.楼顶西侧补充楼梯间。
3.增加南侧建筑入口标识及坡道标识。
本次调整仅限上述变化,项目其余设计内容保持原审定成果不变。
公示期间,周边单位及个人如对公示内容发表意见,请以电子邮件或电话方式反馈。
信函请寄:滨海新区于家堡融和路681号宝策大厦裙房行政许可服务中心
邮编:300450
联系人:邢燕
联系电话:022-66897974 (接听时间为 8:30—12:00,13:30-17:30)
邮 箱:gzjbhxqgs@163.com
天津市规划和自然资源局滨海新区分局
2025年11月3日
附图:建筑设计方案总平面图

主办单位:天津市规划和自然资源局滨海新区分局
推荐使用IE8及以上版本浏览器浏览
网站标识码:1201160001
联系方式:022-66223565