| 关于新建天津港务煤质智能管控中心综合楼建筑设计方案总平面图的公示 |
依据《中华人民共和国城乡规划法》和住房和城乡建设部《关于城乡规划公开公示的规定》的有关要求,现将新建天津港务煤质智能管控中心综合楼建筑设计方案总平面图进行公示。
公示时间为2025年10月13日至2025年10月21日,为期七个工作日。
项目名称:新建天津港务煤质智能管控中心综合楼
项目位置:天津港南疆港区
建设单位:国能(天津)港务有限责任公司
设计单位:中交第一航务工程勘察设计院有限公司
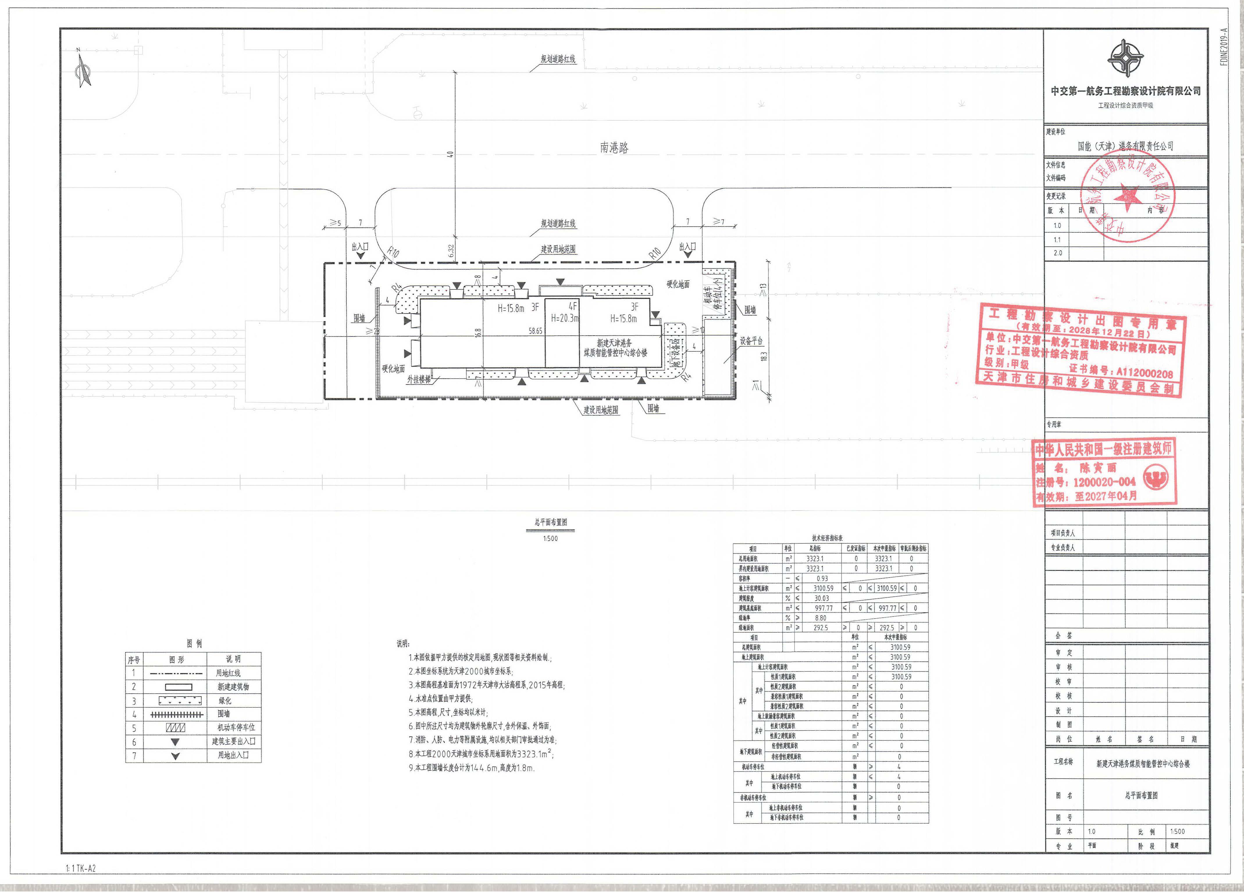
项目简介:新建天津港务煤质智能管控中心综合楼坐落于天津港南疆港区13#-15#泊位后方(南港路以南),用地面积3323.1平方米。本项目设计地上三层,局部四层,无地下建筑,建筑面积3100.59平方米,建筑高度20.7米。
公示期间,周边单位及个人如对公示内容发表意见,请以电子邮件或电话方式反馈。
信函请寄:滨海新区于家堡融和路681号宝策大厦裙房行政许可服务中心
邮编:300450
联系人:许冬雪
联系电话:022-66897974 (接听时间为 8:30—12:00,13:30-17:30)
邮 箱:gzjbhxqgs@163.com
天津市规划和自然资源局滨海新区分局
2025年10月13日
附图:建筑设计方案总平面图

主办单位:天津市规划和自然资源局滨海新区分局
推荐使用IE8及以上版本浏览器浏览
网站标识码:1201160001
联系方式:022-66223565