| 关于天津实华原油储备基地扩能改造项目(控制中心)建筑设计方案总平面图的公示 |
依据《中华人民共和国城乡规划法》和住房和城乡建设部《关于城乡规划公开公示的规定》的有关要求,现将天津实华原油储备基地扩能改造项目(控制中心)建筑设计方案总平面图进行公示。
公示时间为2025年9月3日至2025年9月11日,为期七个工作日。
项目名称:天津实华原油储备基地扩能改造项目(控制中心)
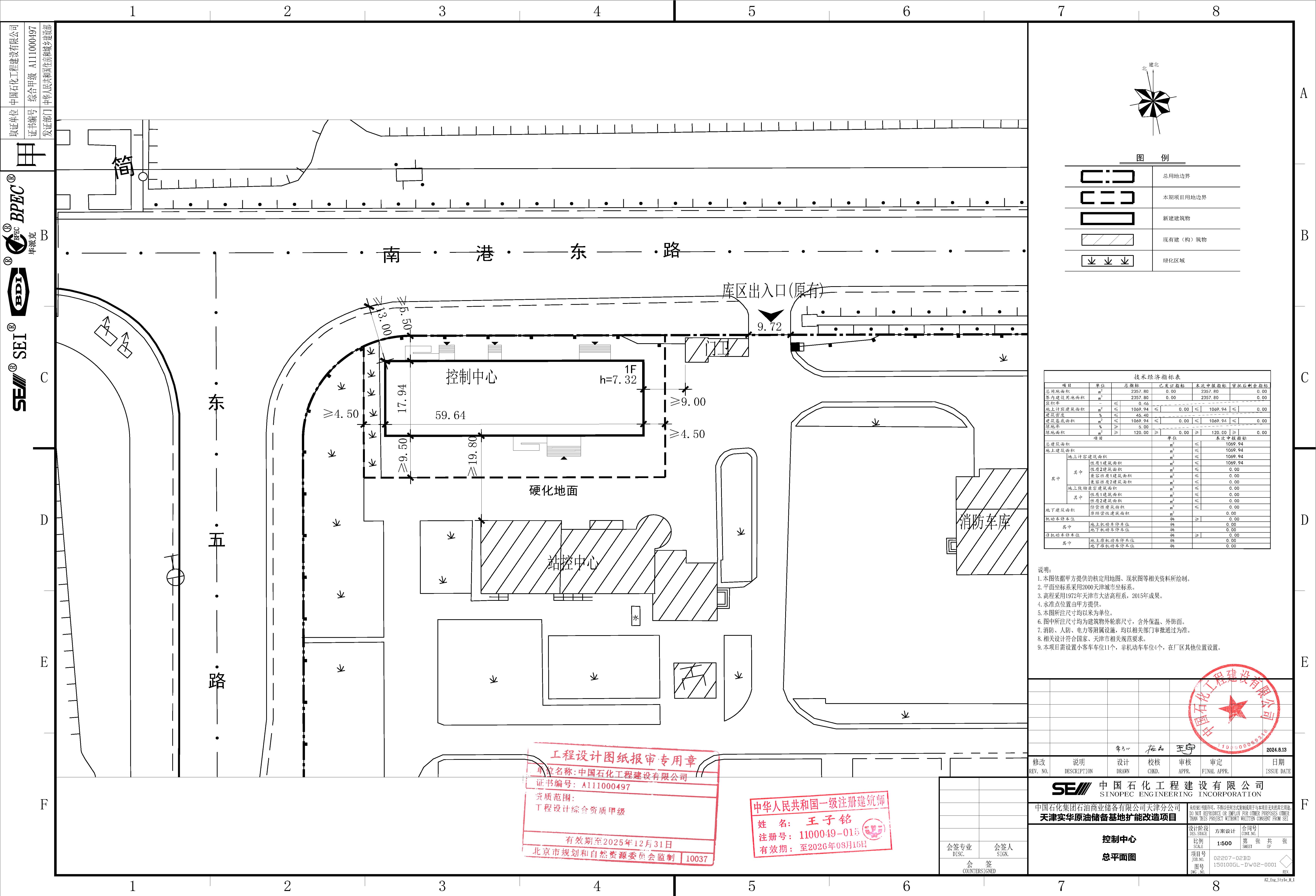
项目位置:滨海新区塘沽东五路以东,南港东路以南
建设单位:中国石化集团石油商业储备有限公司天津分公司
设计单位:中国石化工程建设有限公司
项目简介:项目在现有天津实华原油储备基地厂区内新增1幢控制中心,建筑占地面积共计1069.94平方米,计容建筑面积1069.94平方米。
公示期间,周边单位及个人如对公示内容发表意见,请以电子邮件或电话方式反馈。
信函请寄:滨海新区于家堡融和路681号宝策大厦裙房行政许可服务中心
邮编:300450
联系人:许冬雪
联系电话:022-66897974 (接听时间为 8:30—12:00,13:30-17:30)
邮 箱:gzjbhxqgs@163.com
天津市规划和自然资源局滨海新区分局
2025年9月3日
附图:建筑设计方案总平面图

主办单位:天津市规划和自然资源局滨海新区分局
推荐使用IE8及以上版本浏览器浏览
网站标识码:1201160001
联系方式:022-66223565