| 关于滨海新区轨道交通网络运营控制中心建筑设计方案总平面图(调整)的公示 |
依据《中华人民共和国城乡规划法》和住房和城乡建设部《关于城乡规划公开公示的规定》的有关要求,现将滨海新区轨道交通网络运营控制中心建筑设计方案总平面图进行公示。
公示时间为2025年7月8日至2025年7月16日,为期七个工作日。
项目名称:滨海新区轨道交通网络运营控制中心
项目位置:滨海新区黄港片区欣嘉园南路北侧
建设单位:天津滨海新区建投轨道交通建设有限公司
设计单位:北京城建设计发展集团股份有限公司
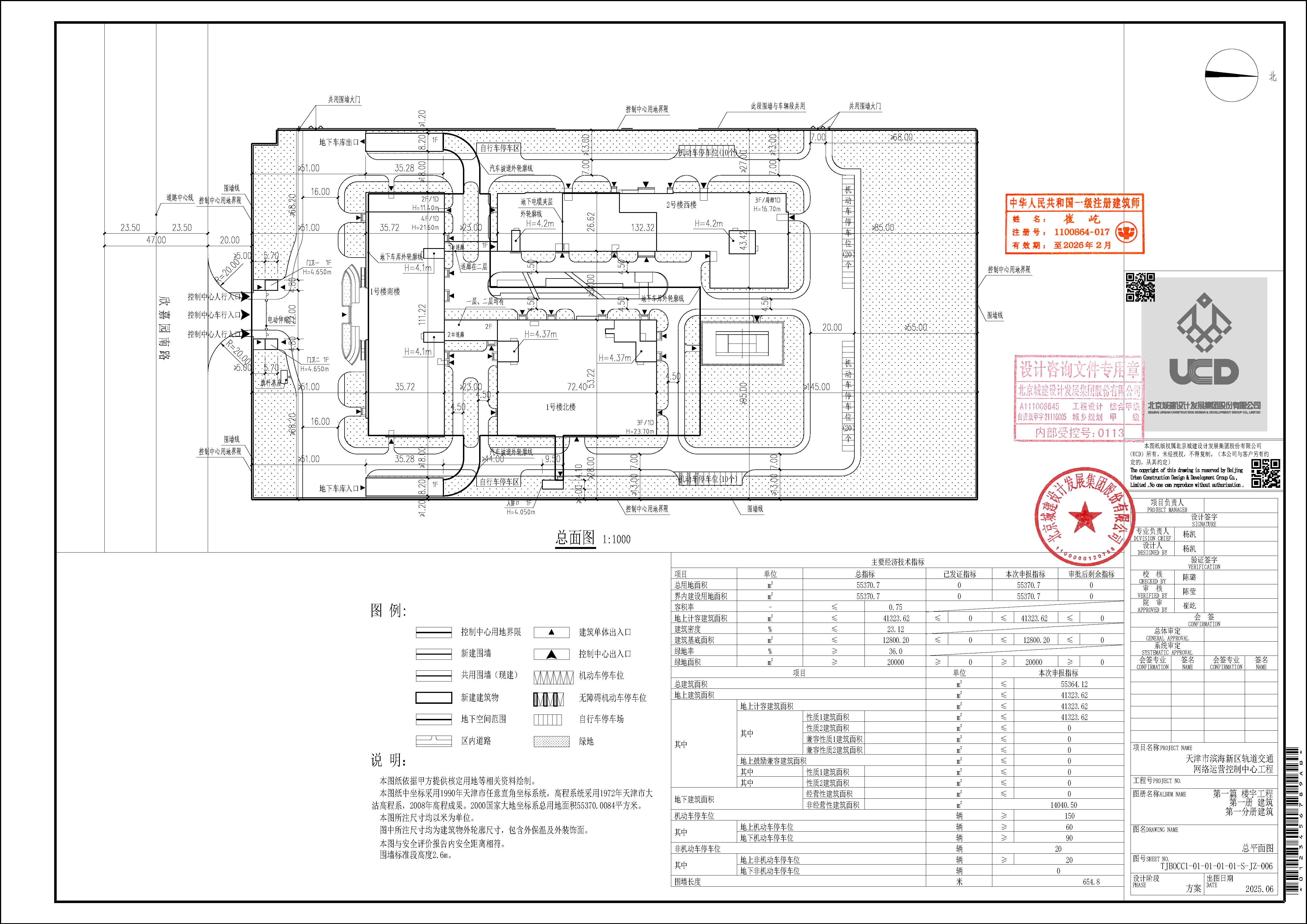
项目简介(变更说明):滨海新区轨道交通网络运营控制中心项目位于滨海新区黄港片区嘉园南路与津秦客运专线铁路交汇处,黄港车辆段东侧,欣嘉园南路北侧。我司申请对原审定规划方案进行如下调整:
因设计深化,调整南楼首层北侧1处内退台阶改为室外台阶,调整北楼首层南侧1处内退台阶改为室外台阶,调整西楼首层东侧4处内退台阶改为室外台阶,西楼首层西侧2处内退坡道改为室外坡道,1处内退台阶改为室外台阶,并增设该位置1个轻钢玻璃雨棚。因人防出入口面积计算失误,导致总平图地上总建筑总面积由41328.12调整为41323.62平方米,容积率调整为0.75。
公示期间,周边单位及个人如对公示内容发表意见,请以电子邮件或电话方式反馈。
信函请寄:滨海新区于家堡融和路681号宝策大厦裙房行政许可服务中心
邮编:300450
联系人:徐艺桐
联系电话:022-66897974 (接听时间为 8:30—12:00,13:30-17:30)
邮 箱:gzjbhxqgs@163.com
天津市规划和自然资源局滨海新区分局
2025年7月8日
附图:建筑设计方案总平面图

主办单位:天津市规划和自然资源局滨海新区分局
推荐使用IE8及以上版本浏览器浏览
网站标识码:1201160001
联系方式:022-66223565