当前位置: 天津市规划和自然资源局滨海新区分局> 政务公开> 最新文件

关于DK66+620区间中继站建筑设计方案总平面图的公示
发布日期: 2025-02-21 15:14      来源: 市规划资源局滨海分局
字号:
  • 扫一扫在手机打开当前页

    依据《中华人民共和国城乡规划法》和住房和城乡建设部《关于城乡规划公开公示的规定》的有关要求,现将DK66+620区间中继站建筑设计方案总平面图进行公示。

    公示时间为2025221日至202533日,为期七个工作日。

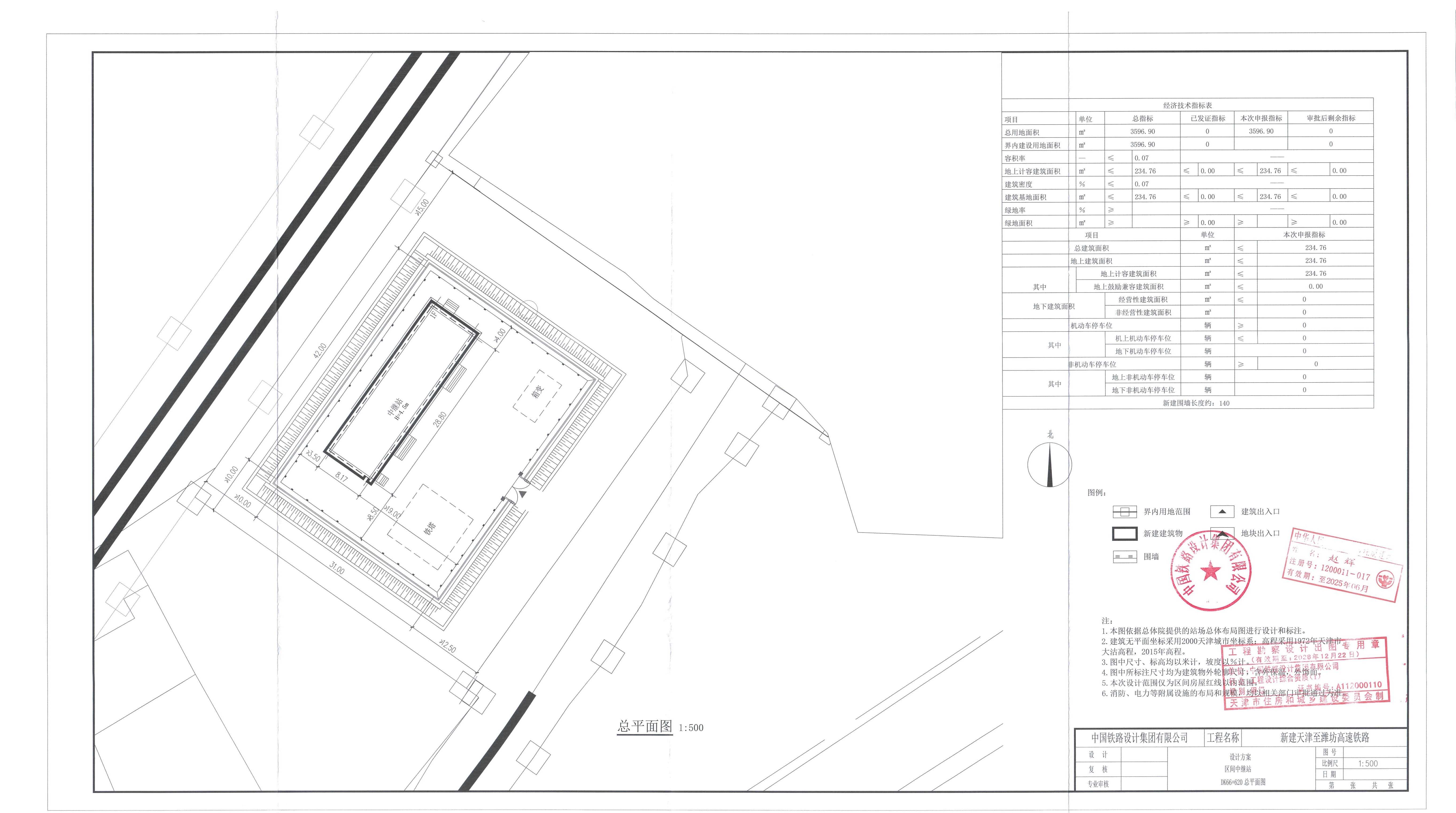
    项目名称:DK66+620区间中继站

    项目位置:天津市滨海新区

    建设单位:津 秦 铁 路 客 运 专 线 有 限 公 司

    设计单位:中国铁路设计集团有限公司

    项目简介:DK66+620区间中继站总建筑面积234.76,地上一层,建筑高度4.5m

    公示期间,周边单位及个人如对公示内容发表意见,请以电子邮件或电话方式反馈。

    信函请寄:滨海新区于家堡融和路681号宝策大厦裙房行政许可服务中心

    邮编:300450

    联系人:郝威凯

    联系电话:022-66897929 (接听时间为 8:30—12:0013:00-17:00)

    邮 箱:gzjbhxqgs@163.com

    天津市规划和自然资源局滨海新区分局

    2025221

    附图:建筑设计方案总平面图


    全国各省市政府网站
    天津市各区政府网站
    滨海新区政府系统网站
    重点链接